- 229 000 € *
Immeuble mixte
OBJAT (19130)
Ce bien est atypique aujourd'hui, mais demain il pourra devenir un endroit qu'un investisseur aura terminé et entièrement loué, ou celui d'un artisan , entrepreneur qui souhaitera y faire sa résidence principale, utiliser le hangar pour son activité et en plus bénéficier de loyers par la location des appartements.
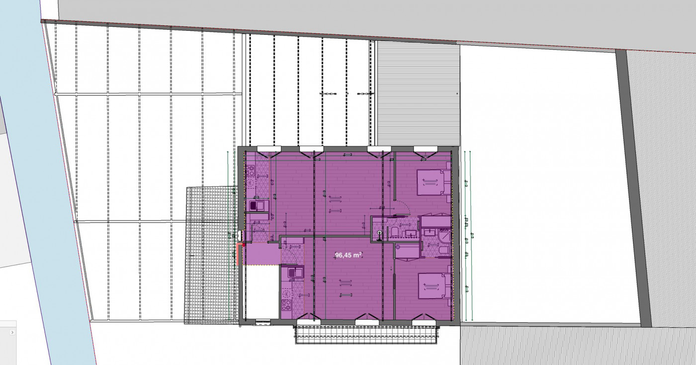
Le RDC après un hall qui conduit aux deux appartements T2 du 1er étage (loués) et au grenier du 2ème étage à finir d'aménager pour en faire un appartement, il mène également à un loft en RDC pour lesquel les travaux sont à terminer .Un espace magnifique avec des plans d'aménagement réalisés par un architecte ,afin d'obtenir un grand T4 et un espace extérieur.
Son emplacement est idéal, et permet d'aller au centre ville à pied en moins de 5 minutes.
Si vous êtes investisseur, si vous souhaitez vous installer professionellement et personellement une visite de ce bien s'impose.
Les informations sur les risques auxquels ce bien est exposé sont disponibles sur le site Géorisques : www.georisques.gouv.fr »
* Honoraires charge vendeur.
(Bien faisant état d'une délégation de mandat)
- Surface NC
- Pièce(s) NC pièce(s)
- Chambre(s) NC chambre(s)
- Terrain NC
























